Muji Hut Spatial Design

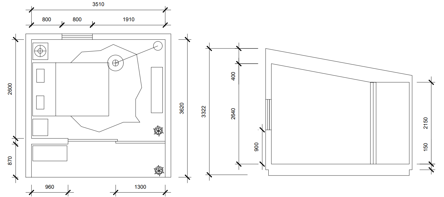
Muji Hut is a humble and cozy space, designed to provide a comfortable living space. The design below reflects my personal vibes and illustrates how I envision my ideal Muji Hut to be.

The overall space embraces mid-century modern vibes, featuring a mix of wood tones for depth and warmth. A cowhide rug adds a pop of texture and visual interest, while the green marble bedside table introduces both color and elegance. A standing lamp provides ambient lighting, enhancing the cozy atmosphere. On the outdoor patio, a small tree stump coffee table paired with a rattan chair offers a versatile and inviting spot to relax.

Ground Floor Plan

Side Elevation

AutoCAD Floorplan